なんばのタワーマンション賃貸物件です
エージェントのチェックポイント
なんば駅徒歩圏内のタワーマンションを賃貸物件としてお預かりしました。
なんばグランドマスターズタワーの911号室です
こちらのマンション、私が以前居住していたマンションです。
そのご縁もあり、賃貸物件としての募集窓口としてお預かりしました。
1階エントランスにはコンシェルジュが10時から17時まで常駐しており、そのほかの時間は警備員が巡回するといったセキュリティー面では一切問題のないマンションとなっています。
そういえば、1階のエントランス、2階のロビーにも応接セットが備え付けられており、来客時にはそちらでよく対応したものです。
この辺りは、タワーマンションならではの設備というか、利点ですよね。
エレベーターはマンション全体で4基あります。
高層階用(19階以上)と、低層階用(19階まで)に分かれており、それぞれ2基づつ設置されております。
宅配BOXはもちろんかなりの数設置されていますし、ゴミ出しも24時間可能です。
一般の賃貸マンションでは、なかなかこうはいかないですよね。
そして、タワーマンションならではの、ゲストルームも完備されています。
1泊4,000円から先着順の予約受付で申し込むことができます。
広さもそこそこありますし、ちょっとしたパーティーなんかで使用している人も多かったですね。
こちらは、普段開放されています。
本を読んだり、商談に使ったりすることも可能です。
貸し切りで使用したいときは、1時間500円で貸し切り使用することも可能です。
基本飲食不可なので、パーティー使用は難しいかもしれませんね。
これらの充実した設備が整っているのもタワーマンションの利点です。
マンションは管理を買えという格言がありますが、こちらのマンション、そういった意味ではしっかりとした管理運営がされていますので、セキュリテイー・防犯面を気にしている方には、ぜひおすすめしたい物件です。
マンションのご紹介はそのあたりにして、実際のお部屋の方をご紹介します。
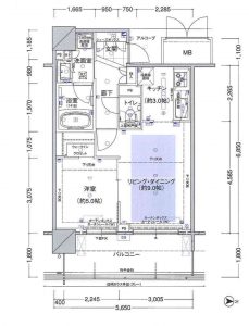
お部屋は911号室、9階のお部屋になります。
バルコニーの向きは東向き。
通天閣やあべのハルカスに向いた方角です。
間取りは1LDK。
43.02平米あるので、1LDKといっても比較的ゆったりとした間取りになっております。
以前は、ご家族・小さなお子様がいる家庭が入居していたくらいなので、新婚様でも十分暮らせる広さではないでしょうか?
ウォークインクローゼットがあり、
結構広めの収納になっていますので、お洋服が多い方でも安心です。
キッチンは3口ガスコンロ+魚焼きグリル。
そして食器洗浄機にディスポーザー(生ごみ処理機)まで設置されており、この辺りは賃貸マンションでは決して叶わない設備になっています。
洗面化粧台もワイドタイプ。
洗濯機置き場の横に、実生活ではうれしいちょっとした棚も用意されています。
一番うれしいのはこのゆったりとした浴室ではないでしょうか?
追い炊き機能はもちろん、浴室乾燥機、ミストサウナまで設置されています。
一般の賃貸マンションではありえないですよね?
そんな素敵なお部屋を今回募集開始いたします。
お家賃は12.5万円(共益費込)
敷金お家賃の1ヶ月分、礼金は20万円です。
物件の詳細はこちらをご覧ください。
https://www.fudosan-hiroba.co.jp/rent/search/view/182493
所在地:大阪市浪速区敷津東2丁目1番24号
構造:鉄筋コンクリート造31階建9階部分
名称:なんばグランドマスターズタワー
最寄駅:大阪地下鉄メトロ御堂筋線・四つ橋線『大国町』駅徒歩4分
南海高野線『今宮戎』駅徒歩2分
南海本線『なんば』駅徒歩10分
内装工事は3月15日には完了しますので、それ以降の入居は可能になっています。
このお家賃でこの設備、環境は魅力的ですよ。
お問い合わせお待ちしております。
RE/MAX L-style TEL06(4703)3300
住所
日本、大阪府大阪市浪速区敷津東2−1−24
物件詳細
- 交通
- 大阪地下鉄メトロ御堂筋線・四つ橋線「大国町」駅徒歩4分
- 交通2
- 南海高野線「今宮戎」駅徒歩2分
- 交通3
- 南海本線「難波」駅徒歩10分
- 構造
- 鉄筋コンクリート造31階建9階部分
- 築年月
- 2010年5月築
- 間取り
- 1LDK(43.02平米)
設備・条件
- コンシェルジュ常駐(勤務時間10時~17時)
- 24時間警備
- ゲストルーム利用可(1泊4000円)
- ゲストラウンジ利用可(貸し切りの場合1時間500円)
- エレベーター4基(低層階用2基、高層階用2基)
- 宅配BOX
- 浴室乾燥機・ミストサウナ
- 食器洗浄機・ディスポーザー・3口ガスコンロ
- 床暖房
広告有効期限:2019年03月30日







